車牌識別停車場管理系統施工安裝步驟都有哪些?
停車場系統的施工,按先后順序,可分為以下幾個步驟:
確定道閘及讀卡設備擺放位置
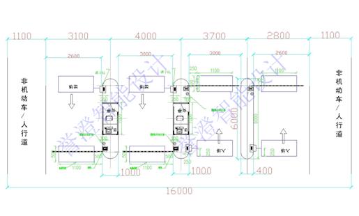
1.確定道閘及讀卡設備擺放位置時首先要確保車道的寬度,以便車輛出入順暢,車道寬度一般不小于3米,4.5米左右為最佳。

2.讀卡設備距道閘距離一般為3.5米,最近不小于2.5米,主要是防止讀卡時車頭可能觸到欄桿。
3.對于地下停車場,讀卡設備應盡量擺放在比較水平的地面,否則車輛在上下坡時停車讀卡會比較麻煩。
4.對于地下停車場,道閘上方若有阻擋物則需選用折桿式道閘,阻擋物高度-1.2米即為折桿點位置。

5.道閘及讀卡設備的擺放位置直接關系到用戶使用是否方便的問題,一旦位置確定管線到位后,再要更改位置則會給施工帶來很大的麻煩,因此對于在這方面工程經驗不是很多的工程人員來說,先將道閘及讀卡設備安裝到位,然后模擬使用者,會同甲方人員一起看定位是否合適,最后再敷設管線。
確定自動出卡機安裝位置(刷卡型考慮,車牌識別型跳過)
在有臨時車輛出入的停車場,若選擇了遠距離讀卡設備,同時又選擇了自動出卡機,則自動出卡設備為一獨立體,安裝在讀卡設備正前方距讀卡設備約0.3米。若選擇了普通讀卡設備,同時又選擇了自動出卡機,則自動出卡機同讀卡機安裝在同一設備內,現場施工不必考慮這一步驟。
確定攝像機(或者車牌識別相機/一體機)安裝位置
出入口攝像機的視角范圍主要針對出入車輛在讀卡時的車牌位置,一般選擇自動光圈鏡頭,安裝高度一般為0.5-2米。若沒有選擇圖像對比功能,則不需考慮此項。

確定崗亭位置
對于有臨時車輛的停車場,崗亭一般安放在出口,以方便收費崗亭內由于要安放控制主機及其它一些設備,同時又是值班人員的工作場所,所以對崗廳面積有一定要求,最好不小于4平方米。

確定控制主機的位置
控制主機是整個停車場系統的核心控制單元,若停車場出入口附近設有崗廳,則安放在崗廳內;若沒有崗廳則安放在中控室。但控制主機同出入口讀卡設備的距離一般不超過200米。
停車場系統設計參數
1.讀卡機(中心距離)與道閘(中心距離)>2.5M;
2.管理電腦(一般放置在停車場管理崗亭內)至讀卡機/車牌識別相機的距離<100M;
3.攝像機安裝高度:1.2—2.0M;
4.地感線圈尺寸:2M(長)X0.8M(寬);
5.收費管理崗亭最小面積:4平方米(2M*2M);
6.進出車道寬度:>3M;
7.設備安裝基座尺寸:0.4M(長)*0.4M(寬);
管線敷設
管線敷設相對比較簡單,在管線敷設之前,對照停車場系統原理圖及管線圖理清各信號屬性、信號流程及各設備供電情況。信號線和電源線要分別穿管,對電源線而言,不同電壓等級、不同電流等級的線也不可穿同一條管。
線材型號
1.通訊線(管理電腦至出入口機):RVVP6*0.3mm;
2.控制線(出入口機至道閘):RVVP6*0.3mm;
3.視頻線(出入口攝橡機至管理電腦):75-5同軸電纜;
4.地感線:耐高溫抗腐蝕單股多芯1.5mm2導線繞制6圈,埋放深度3cm—5cm;
5.電源線:(供電至讀卡機、道閘、攝像機)RVV3*2.5 mm;
控制機及道閘的安裝
澆鑄一高10-20CM的防水防撞的安全島(安裝基座),并在出入口機、道閘底座中部預埋鋪設管線。用四個膨脹螺栓將出入口機、道閘固定在安全島上。
地感線圈的埋設

地感線圈埋設是在出入口車道路面鋪設完成后或鋪設路面的同時進行的,當路面鋪設好或正在鋪設路面時,在出入口機、道閘安裝位置附近的車道上,切一線圈放置槽(線圈放入切槽內,切槽寬為1.5CM),地感線圈尺寸為200CM(長)X80CM(寬)X5CM(深)。將地感線沿切槽繞5―6圈,并將線圈的兩個端子引入出入口機、道閘的機箱內,并用水泥或瀝青填充切槽。
- 上一篇:湖南新規:有條件的公立醫院要對病人免停車費 2020/6/20
- 下一篇:巡更系統常見故障問題如何解決? 2020/6/20










滬公網安備 31011402002854號